Property Type
House, House
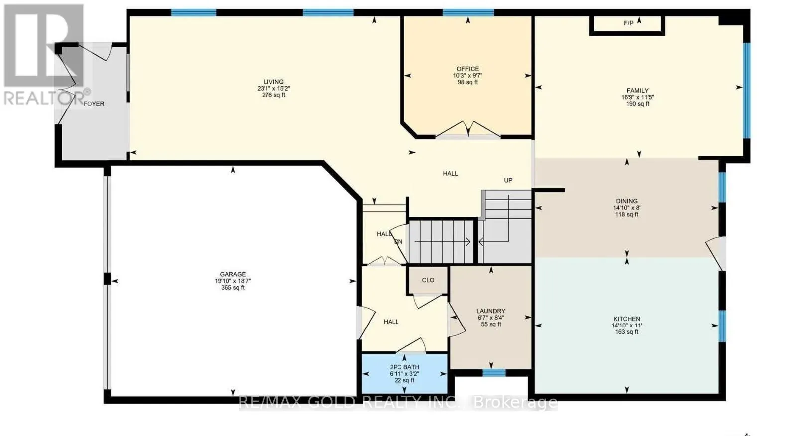
Parking
Garage: Yes, 6 parking
MLS #
W12499906
Size
3000 - 3500 sqft
Basement
None
Listed on
-
Lot size
-
Tax
-
Days on Market
-
Year Built
-
Maintenance Fee
-
